当前位置:首页 > 装修百科 > 装修设计 >

成都办公楼二次装修改造要注意什么?

来源:成都朗煜工装公司   发布时间:03-23 12:41   阅读:
前言导读

拥有一栋独立办公楼的企业多为大公司大企业,但无论是何种规模大小的公司,办公楼及室内办公室装修效果始终是客户对企业的第一印象,也是开始了解与认可的开始。近几年成都办公楼二次装修改造的翻新需求越来越大,对于此类装饰装修工程我们应该注意些什么呢?

       拥有一栋独立办公楼的企业多为大公司大企业,但无论是何种规模大小的公司,办公楼及室内办公室装修效果始终是客户对企业的第一印象,也是开始了解与认可的开始。
 

 
       近几年成都办公楼二次装修改造的翻新需求越来越大,对于此类装饰装修工程我们应该注意些什么呢?成都朗煜专业工装公司出以下几点建议:
 

一、玻璃幕墙装修改造

 

       1.幕墙龙骨安装

 
       办公楼幕墙改造之前需要提供可性的工程技术保证措施及施工方案,并总结出幕墙龙骨具体施工详细工艺、步骤、验收标准,如基线复检、龙骨竖向材料安装与之紧密相关的偏差允许范围。
 
办公楼幕墙效果
•办公楼幕墙效果

       2.幕墙玻璃安装

 
       办公楼幕墙玻璃安装须严格按照标准及施工流程执行,具体流程为测量放线→钢结构定位安装→链接耳板的安装固件→千年后受力索的调整→内力检测与调整→承重索安装及偏差调整→水平索安装调整→抓点构件安装→玻璃安装→幕墙玻璃装饰条安装及表面清理。
 
办公楼幕墙玻璃施工安装
•办公楼幕墙玻璃施工安装

办公楼玻璃幕墙安装设计剖面节点图
•办公楼玻璃幕墙安装设计剖面节点图
 

二、火灾自动报警系统

 
       火灾自动报警系统是消防的重要分项工程,办公楼属于商业建筑,无论是新办公楼还办公楼装修二次改造装修都应把火灾自动报警系统、自动喷水灭火系统、消防栓系统、应急照明及疏散指示系统做到位。
 
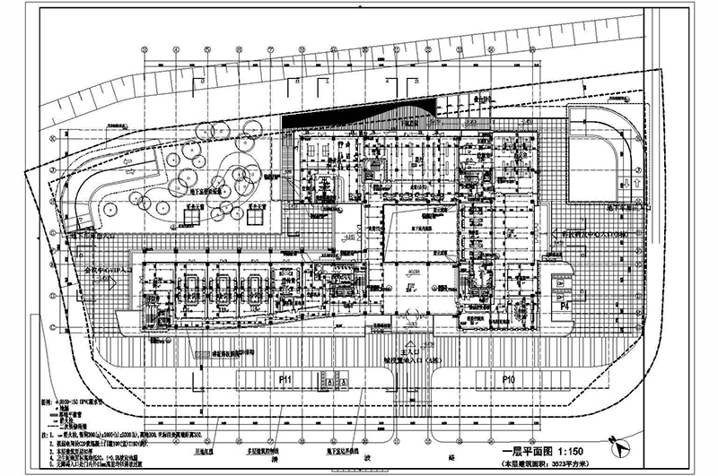
办公楼装修平面消防设计施工图
•办公楼装修平面消防设计施工图
 

三、办公楼装修须备案

 
       办公楼无论是水暖、电气、装饰需要二次改造应向当地行政主管部门提交装修备案申请,在未发放施工许可情况下严禁私下改造装潢。整个工程验收标准要符合国家现行建筑工程施工质量验收统一合格标准后方可投入使用。


相关阅读推荐:

 
 
 
 

本网站/文章提供的所有信息仅供参考,我们不对其准确性、完整性、有效性、及时性或适用性作任何形式的保证或承担任何责任。用户在使用本网站/文章信息时应自行判断,并承担因此产生的风险及责任。我们保留随时修改或更新网站/文章内容而不另行通知的权利。

更多内容阅读